Alliance Presbyterian Church

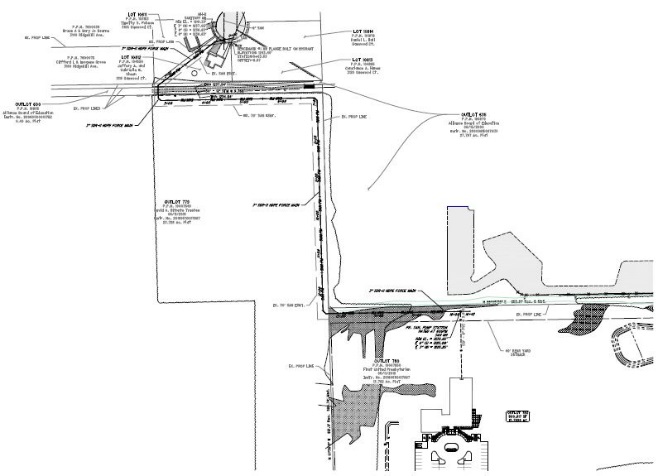
DRG performed site planning, engineering, and surveying for all residential lots in an effort to install over 1,800 linear feet of new sanitary sewers for First United Presbyterian Church in Alliance, OH.

One-Stop Shop Engineering Solutions

First United Presbyterian Church is located in Alliance, OH. DRG performed the site planning, engineering, and surveying for all residential lots. This project included design for the installation of over 1,800 linear feet of new sanitary sewers to comply with local, state, and federal regulations.

Key Features

  • Gravity & Low-Pressure Grinder Pump Sanitary Sewer Collection Systems
DRG Engineering performed the site planning, engineering, and surveying for all residential lots surrounding the Alliance Presbyterian Church to prepare for a new sanitary line installation.
DRG Engineering installed over 1,800 linear feet of new sanitary sewers to comply with local, state, and federal regulations.
>> Learn more about the DRG Engineering team’s work

Related Client Work

Post Removals Westbound Elizabeth Billiter
Non-Profit

DRG Provides Tree Inventory, Valuation Reports & Permitting For Citygate Church In Cincinnati, OH

DRG conducted a tree inventory, created valuation reports, and assisted in permitting for a vegetation removal project along I-275 in Cincinnati for Citygate Church.
Read More
Aerial Of Grandville
Non-Profit

Davey Resource Group Partners With ReLeaf Michigan To Bring Urban Forestry Management Services To Small Communities

DRG and ReLeaf Michigan have jointly implemented a program in Michigan and northern Indiana, providing community forestry data, training, and volunteer tree planting to small communities.
Read More
Two Employees (1)
Two Employees (1)

Get In Touch With Us!

We pride ourselves at Davey Tree on providing prompt, professional and personalized service from certified arborists that live, work and engage in your community. Contact one of our Davey Tree specialists for your residential, commercial, utility, or environmental needs.

Let's Find What
You're Looking For!